大阪・梅田の象徴的存在であった大阪マルビルの建替計画について、現地に「建築計画のお知らせ」が掲示されました!掲示内容によると、建物の高さは約190m、地上42階・地下3階建てとなっており、ほぼ公表されてきた計画どおりの規模でプロジェクトが進行していることが確認できました。用途構成にはホテル、劇場、オフィス、美術館などが含まれ、単なる建替にとどまらない、梅田の都市機能更新を担う再開発となりそうです。
現地掲示で明らかになった計画概要

今回掲示された「建築計画のお知らせ」によると、計画名称は(仮称)大阪マルビル建替プロジェクト(本体工事)。所在地は大阪市北区梅田一丁目4番1ほかで、旧大阪マルビル跡地そのものが計画地となります。
建物規模は、地上42階・地下3階、高さ190.35m。延床面積は72,763.72㎡、容積対象面積は64,752.00㎡に達し、梅田エリアでも有数の大規模複合ビルとなります。構造は鉄骨造および鉄骨鉄筋コンクリート造。建築主は大和ハウス工業株式会社、設計は日建設計・フジタ設計共同体、施工はフジタ・大和ハウス工業特定建設工事共同企業体が担います。
工事着手は2026年12月初旬(予定)、竣工は2030年12月末(予定)となっています。
用途構成、縦に積層される都市機能

以前に公開された断面イメージからは、本計画が明確なミクストユース(複合用途)として構成されていることが読み取れます。
低層部には商業機能に加え、ピロティや球体デジタルアトリウムが配置され、街に開かれた公共性の高い空間が意識されています。さらに低層から中層にかけては、コンサートホール・舞台機能が組み込まれ、文化・エンターテインメント機能が計画の中核に据えられている点が特徴的です。
中層部にはイノベーションオフィス、その上に都市型ホテル、さらに上層部にはラグジュアリーホテルが配置される構成となっています。ホテル機能を2層構成とすることで、富裕層向けの滞在需要と、都市型・ビジネス利用の双方を取り込む狙いがうかがえます。
最上部には展望スペースおよびミュージアムが配置され、収益性だけでなく、都市のランドマークとしての象徴性や来訪価値を重視した計画であることが明確です。
大阪マルビルの「記憶」を次世代へ継承する試み

大阪マルビルといえば、円筒形の独特な外観によって、長年にわたり梅田の都市風景を象徴してきた存在です。今回の建替計画では、用途構成や断面構成、さらには球体デジタルアトリウムの採用などを通じて、旧マルビルの「円」の記憶を、直接的ではないかたちで現代的に再解釈しようとする姿勢が見て取れます。
オフィスやホテルに用途を単純化するのではなく、劇場や美術館、展望機能までを組み込んでいる点からも、本計画が「建物の更新」ではなく、「都市体験そのものの再構築」を志向していることがうかがえます。
大和ハウスが示す強い意志、計画は後退せず

施主が大和ハウス工業であることもあり、本計画からは、大阪のランドマークだった大阪マルビルの記憶を継承しつつ、次世代に通用する新たな都市施設として再構築しようとする強い意志が感じられます。高さ約190mというスケール感に加え、段階的に積層された用途構成や、円のモチーフを想起させるデザイン要素は、その象徴と言えるでしょう。
近年は建設費の高騰を背景に、大規模再開発計画が見直しや縮小を余儀なくされるケースも少なくありません。そのため、本計画についても一時は規模調整の可能性が脳裏をよぎりました。しかし、今回掲示された建築計画のお知らせを見る限り、当初構想は大きく後退しておらず、大和ハウス工業としては、多少の逆風があっても、このプロジェクトを是が非でも実現させる構えであることがうかがえます。
まとめ

(仮称)大阪マルビル建替プロジェクトは、高さ約190mという規模にとどまらず、用途構成や都市への開き方においても、梅田の中核機能を更新する再開発としての性格を強く備えています。大阪マルビルの記憶を引き継ぎながら、新たな都市体験を提示するこのプロジェクトが、完成時にどのような存在感を放つのか、引き続き注目していきたいところです。
計画概要

計画名称:(仮称)大阪マルビル建替プロジェクト(本体工事)
所在地:大阪市北区梅田一丁目4番1 ほか6筆
交通:JR「大阪」駅/大阪メトロ御堂筋線「梅田」駅、四つ橋線「西梅田」駅、谷町線「東梅田」駅/阪神本線・阪急各線「大阪梅田」駅
階数:地上42階・地下3階
高さ:190.35m
構造:鉄骨造+鉄骨鉄筋コンクリート造
主用途:ホテル、劇場、事務所、飲食店舗、美術館、自動車車庫
総戸数:―
敷地面積:3,246.69㎡
建築面積:2,490.63㎡
延床面積:72,763.72㎡
容積対象面積:64,752.00㎡
建築主:大和ハウス工業株式会社
設計者:日建設計・フジタ設計共同体
施工者:(仮称)フジタ・大和ハウス工業特定建設工事共同企業体
着工予定:2026年12月 初旬(予定)
竣工予定:2030年12月 末(予定)
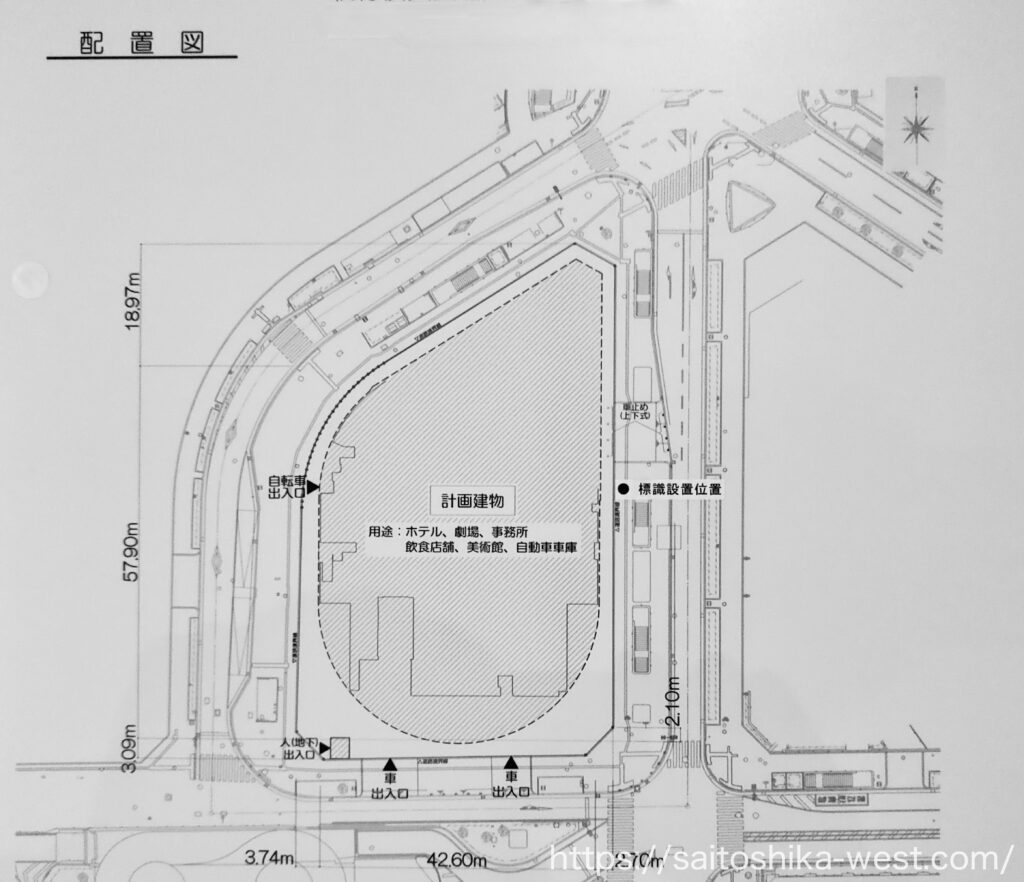
立面図・配置図

建築計画のお知らせに掲載されていた立面図です。南側がセットバックした形状となっています。

同じく配置図です。
2026年5月の様子

現地の様子です。前回の取材が2026年2月だったので、約3ヶ月ぶりの撮影です。

アップで見た様子です。地下階の解体が終わったのでしょうか?ずいぶんとスッキリした印象です。

撮影ポイントを変えて、北側から見た様子です。

北西側から見た様子です。
西側から見た様子です。

最後は南側から見た様子です。
2026年2月の様子

現地の様子です。前回の取材が2026年1月だったので、約1か月ぶりの撮影です。

取材にには旧マルビルの地下駆体の解体工事が行われていました。


計画地は万博会場と梅田を結ぶシャトルバス乗り場として暫定利用されていましたが、万博閉幕後、すぐに解体工事が始まり、現地の様子は一変しました。


北東側から見た様子です。

撮影ポイントを変えて、大阪梅田ツインタワーズ・サウスのスカイロビーから見た計画地の様子です。

旧マルビルの形がはっきり分かりますね。

最後は引き気味で見た周辺の様子です。
シン・マルビル(仮称)は、梅田ダイヤモンド地区の中心に位置する計画であり、完成すれば、まさに梅田を象徴する新たなランドマークタワーとして、圧倒的な存在感を放つことになりそうです。2026年1月の様子

現地の様子です。建築計画のお知らせが掲示されたとの情報に、いてもたってもいられず、真夜中に自宅からクルマを飛ばして梅田まで撮影しに行ってきました!

北東側からみた様子です。

万博シャトルバス乗り場が撤去され、旧ビルの地下駆体の解体工事が行われていました。

最後は西側からみた計画地の様子です。
(仮称)大阪マルビル建替プロジェクトですが、当初計画と比べると、地上階は40階から42階へ2階増加し、地下階は4階から3階へ1階減少しています。一方、最高高さは約192mから190.35mへと約1.65m低くなっており、当初計画の規模を維持したまま、構成を微調整した内容となっています。全国各地で再開発の中止や見直しが相次ぐ中、新しい梅田のシンボルとなるシン・マルビルが、ほぼ計画通りに建て替えられることは、大和ハウスの意地と決意を感じざるを得ません。



